Terug naar hoofdinhoud
Simone Bossi

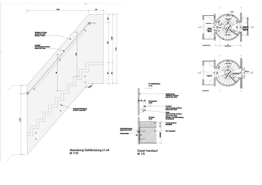
Sculturele trap

STACCATO – Kantoorgebouw

In een nieuw kantoorgebouw van vijf verdiepingen in Luxemburg-Kirchberg pronkt een sculpturale trap met een vloeiende spiraalvorm, in een zachte donkere kleur, met lichte terrazzotreden en verlicht door een verticaal geplaatste ronde koepel. De leuning van deze wenteltrap, die tevens dienstdoet als noodtrap, bestaat integraal uit staal. De treden zijn ter plaatse gerealiseerd in gewapend beton. Er werd een sjabloon getekend op flexibele houten platen, waarna de leuning in verschillende delen werd vervaardigd uit 15 mm dik plaatstaal en in het atelier op maat gebogen werd. Vervolgens is ze naar de werf getransporteerd en onzichtbaar tegen de betonnen treden bevestigd. Tot slot zijn de afzonderlijke delen ter plaatse gemonteerd, geschuurd en gelakt (RAL 8022). De algemene en indirecte verlichting van de trap, die ook fungeert als noodverlichting, wordt verzorgd door een ledstrook die geïntegreerd is in de leuning met een diameter van 20 mm.
  • Luxembourg
    Plaats
  • D'Altra
    Opdrachtgever
  • Kaell architecte & Jim Clemes Associates
    Architect / Ontwerper
  • D'Altra
    Hoofdaannemer
  • Guy Gardula & Associés
    Staalbouwer
  • Simone Bossi
    Foto